La Joya

Descripción: El proyecto se articula mediante el desfase de volúmenes, con un basamento sólido y remetido que da la impresión de que el
volumen superior flota sobre el inferior. Esta disposición no solo resalta la estética del inmueble, sino que también proporciona
una privacidad inigualable al orientar la fachada ciega hacia la calle, protegiendo así la intimidad de sus habitantes y enfocando
las vistas hacia el campo de golf.

Tipología: Residencial

Ubicación: Valle de Bravo, Estado de México

Año: 2021

Estatus: Proyecto

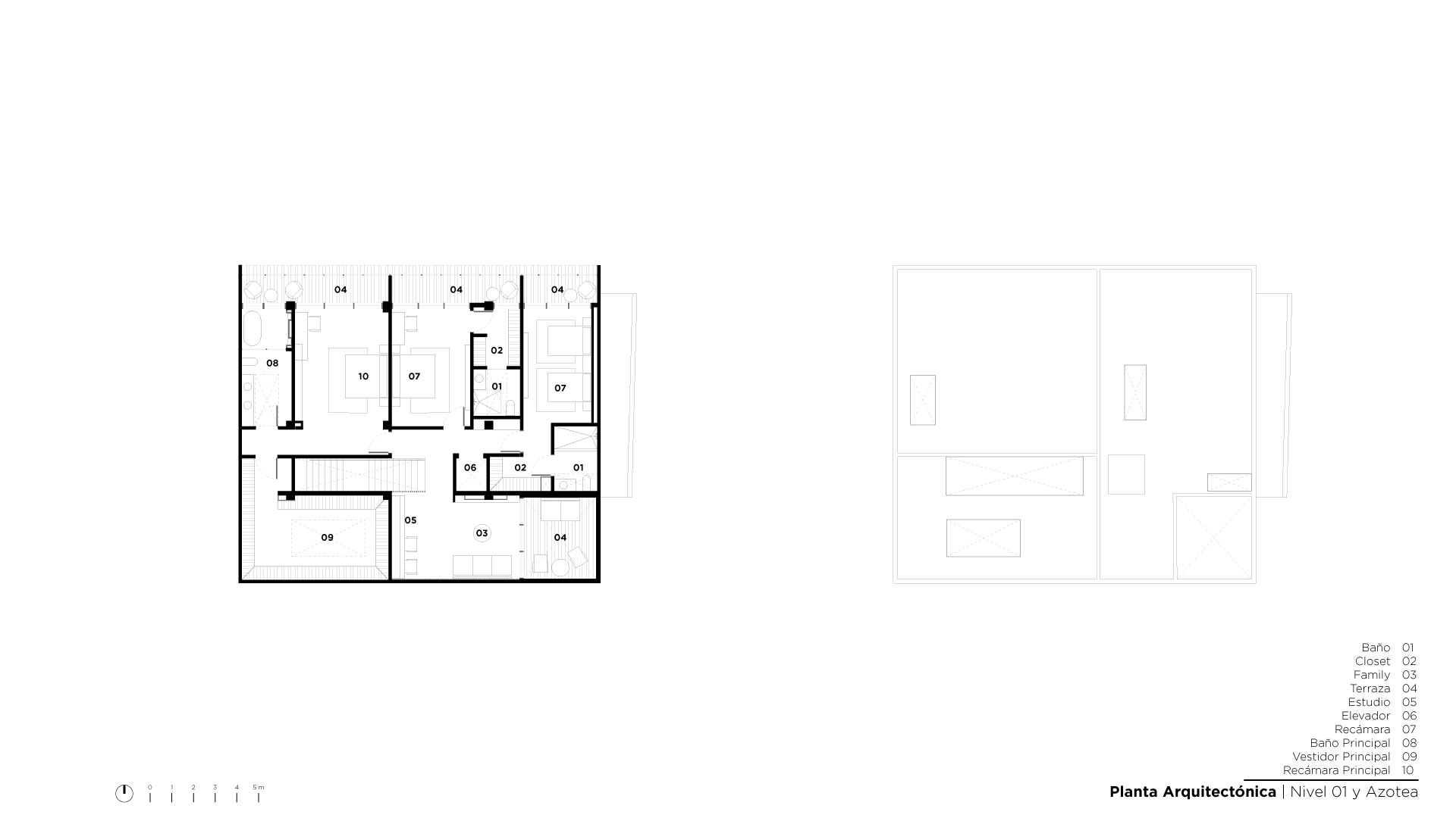
Área: 900 m²

Niveles: Sótano + PB + 1N


Arquitectura: CRAFT Arquitectos

Visualización Arquitectónica: Barbeta Arquitectos

CRAFT Arquitectos

CRAFT es un equipo joven liderado por Alan Rahmane, con sede en la Ciudad de México. Nos especializamos en el diseño, la construcción y el desarrollo de proyectos arquitectónicos de diversas escalas y tipologías. Nuestra misión es entender las necesidades de la ciudad y sus habitantes, integrando las cualidades del entorno en nuestros espacios. 

Creemos en una arquitectura responsable, eficiente y rentable, que genere un impacto positivo en el mercado y promueva una práctica competente. Estamos comprometidos con crear soluciones innovadoras que aborden los desafíos contemporáneos y mejoren la calidad de vida de las comunidades a las que servimos.